On March 24, 2026, the Salem Planning Board convened to review a range of projects and public issues. The agenda included a proposal for a new ghost kitchen concept located on South Broadway, a continuing proposal for a pickleball facility at 179 Main Street, and a request to introduce coffee service at an existing establishment on South Broadway.
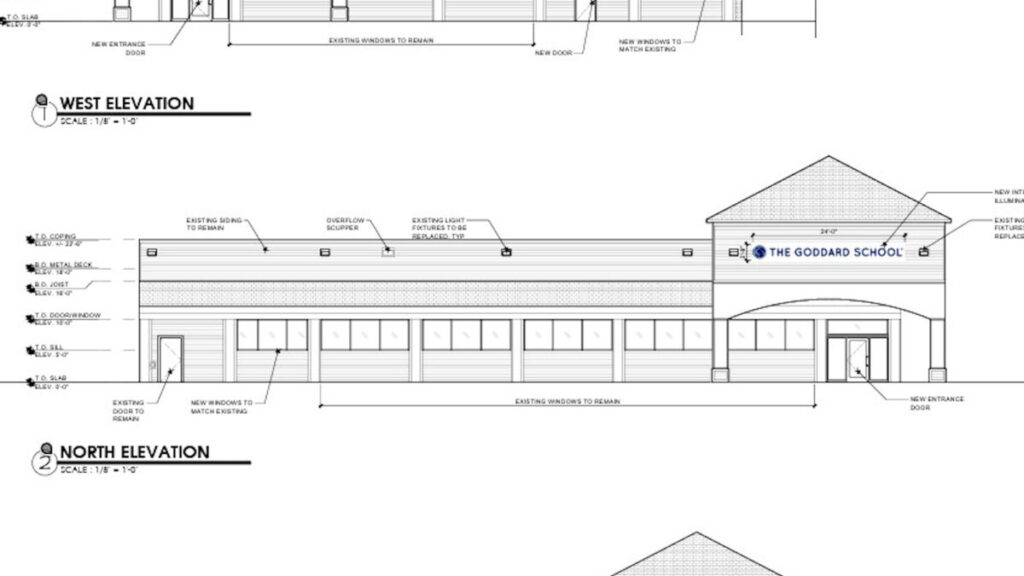
The meeting began with old business regarding the Goddard School project at 174 Main Street. Much of the discussion focused on traffic circulation and access management. After reviewing the project and considering a proposed compromise for site circulation, the Planning Board unanimously approved the application with conditions.

The Board then shifted to new business at 125 South Broadway, where members reviewed an application for Wonder, a 4,000 square foot ghost kitchen with limited indoor seating. The business model is primarily focused on takeout and delivery. The proposal also included a request for a conditional use permit to reduce parking requirements. After discussion, the Planning Board unanimously approved the application with conditions.
One of the more detailed discussions of the evening involved 179 Main Street, the historic former car barn. The applicant is proposing a new pickleball facility within a portion of the building, along with a juice bar and sports training space. Plans also include six outdoor courts west of the building. Board discussion focused on site circulation, the outdoor courts, and compatibility with surrounding uses in the mixed-use area, including nearby residential properties and a proposed townhouse development next door. Because the outdoor courts were not included in the original variance request to the Zoning Board of Adjustment, the applicant is expected to return to the ZBA. The Planning Board continued the application for further review.
The Board also addressed several public matters. At 15 Trolley Lane, members discussed an impact fee adjustment after determining the project was not built out to the full square footage originally approved. At 92 Lowell Road, the Board declined a request to allow vehicles on site before the applicant obtains a building permit and begins construction on an approved warehouse project.
At 445 South Broadway, the Board was supportive of a proposal involving wood processing and off-site distribution at the Donabedian Farm property. At 492 South Broadway, the Board conditionally approved a request to add walk up coffee service as an accessory use to the existing convenience store and smoke shop.
The Planning Board also continues to discuss zoning amendments that may be adopted at a future meeting. The Board’s next meeting is scheduled for April 14, 2026.
